Prior

Type: Infill Development
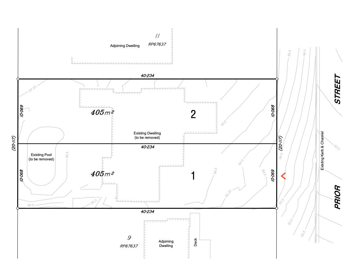
Location: Prior Street, Tarragindi
Date: 2023 - 2025

Prior represented the perfect infill opportunity to create 2 new Dwelling houses on an under-utilised 810m2 lot within 15 minutes of the CBD. Hickey Oatley assisted from site acquisition through to the creation of the new titles, ready for sale.

Services Provided:

  • Preparation, lodgement and management of a code assessable development application to approval. 

  • Due diligence and pre-purchase planning advice

  • Preparation, lodgement and management of a code assessable development application to approval for subdivision

  • Preparing, lodging and managing the plan sealing process to achieve titles as efficiently as possible;

  • Preparation, lodgement and management of early referral requests for houses.

Previous
Previous

Wendouree

Next
Next

Tingal Rd